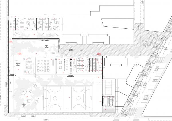
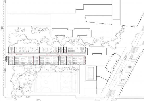
2019. Competition CEIP Embajador Beltrán, Almassora, Spain.

1st PRIZE – COMPETITION FOR THE DRAFT PROJECT SELECTION FOR THE CONSTRUCTION OF THE C.E.I.P “EMBAJADOR BELTRÁN”

Call by the Almassora City Council, within the “Edificant” program.

M’agrada el meu cole

Ground floor

First floor

Longitudinal section